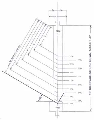
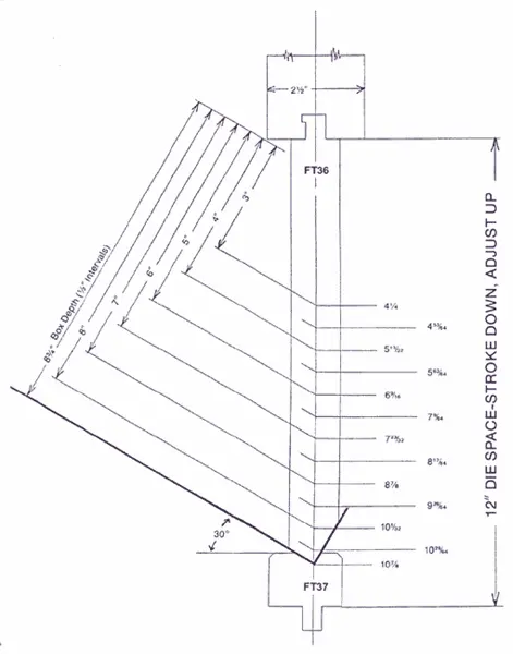
Item # FT36-FT37, Tipped-Angle Box Forming Die

Have one to sell?
ConditionNew
1 available